戶型圖

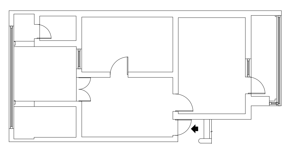
原始平面圖

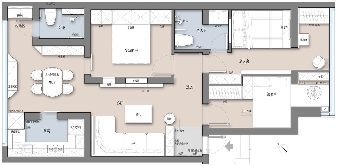
改造后平面圖
解決方案:
1、設計師經過防水改造,解決了房屋的潮濕難題
2、通過在整個空間采用三層玻璃雙中空,全頻不等腔的超隔音門窗,以及在臨外墻處全部加保溫隔熱板,隔絕了火車的噪音影響,將室內的保溫隔熱隔音都到了極致。
3、在此基礎之上,設計師為房間開辟了休閑功能區,大量的收納空間更是將每一寸空間利用到極致。此外,設計師對設計、施工、主材的合理協調調度,也為整個設計的理想落地做了最好的護航。
4、設計師將空間整體架空了12公分,包括墻面全部石膏板和水泥板找平架空、地面全架空,避免了全打拆的噪音干擾與對老房結構的影響,因為不用開槽而節省了工期,同時方便走管排污,使
玄關

客廳

為業主精心設計的專屬家庭圖案在沙發墻上顯得格外清新自然。每一個圖形都代表了一個家人,以弧形、圓形以及二者的共融,來表示家庭中不同代際成員之間的和諧與有愛。

同時,綠色也為整個家奠定了色彩基調。營造出一種溫馨有愛的家庭氛圍。

設計師把電視墻處原有的門封上,在旁邊位置挖了一個矩形的小門洞,一方面可以借光,使室內更加明亮,另一方面在造型上取得似斷非斷的借景意境,與玄關處的柜體掏空一段相呼應,讓房間顯得更有呼吸感。

為了充分利用空間,設計師將空間收納做到了極致。除了隨處可見的柜體安置,更采用多功能可變形家具,大大擴展了物品的放置空間。



拱形元素的設計應用,寓意著家就像一個溫暖的港灣,在不同的季節,展開它溫暖寬闊的臂膀,深擁每一個家庭成員入懷。

來自藝術家侯俊杰的畫作《“柿”事如意》中的菜籃子的原型即是生活中賣菜的二位老人所使用的菜籃子,同時加入了10顆飽滿鮮紅的果子,寓意著對一家人生活紅紅火火、十全十美的美好期許。

傘柄上亦刻有業主姓氏,將每一個有愛的小細節注入到家庭生活中的日常用品之上,擁抱自己的小確幸與儀式感。
餐廳

設計師將餐廚空間設計得更加富于現代生活的關切,空間不大,卻處處流溢出家的氣息。餐廳中的弧形元素呼應了空間的主題,溫潤和諧的線條勾勒出一幅幅清雅溫馨的片段,記錄著一家人快樂生活的點滴。

家人團員圍聚,杯盤碗碟的碰撞間,正是日常歲月中最溫情的點滴瞬間定格。

餐邊矮柜既為習慣存儲雜物的父親提供了收納之所,也可以作為觀景臺使用,在節目組旅拍環節中,一家人在北京的民宿里對著觀景大窗羨慕而神往,現在看到自己家里也有了類似的窗戶,都十分激動。
廚房

廚房由一字型改為了U字型,增設轉角柜。配備即熱式飲水機,讓一家人隨時都可以直接飲用熱水,下拉式拉籃的設置,讓老人不必費力向上拿取物品,適老化的設計隨處可見。筷子消毒柜的設置,保證了飲食的安全與衛生。
多功能房

多功能房,兼具健身房與婚房的雙重功能。平日里,為保證健康的體魄,業主可以在跑步機上灑汗,運動累了還可以在設計有型的小茶桌這里歇息片刻,進行勞逸結合的舒暢體驗。

通過靠墻一面柜體木板的拉伸,可以拉出一張睡床,讓房間瞬間變身臥室。設計師將以恩愛戀人合影題材的小夜燈作為禮物送給二人,當燈光在床頭亮起,溫馨甜蜜的記憶再次涌入心間。


在屋頂浪漫的星空燈下,對著劃過的流星,彼此依偎許下幸福美好的心愿,開啟新生活的動人樂章。
衛生間

設計師通過將房子整體抬高架空12公分,方便了走管排污,最終實現了委托人兩衛的需求。原有的公衛狹小局促,沒有做干濕分離。

改造后的公衛進行了合理的干濕分離,利用橙色主色調,營造出清麗干練的視覺效果,墻壁以墨綠色系為主,掩映著舒展恣肆生長的花植,將細節之美訴諸到空間的每一個角落。
臥室

父母房,為老兩口提供了舒適安逸的休憩場所,空間延續了墨綠色與橙色相結合的主色調,打破沉悶的同時,穩重之余又不失活力。擱板的設計,可作為未來父母上了年紀之后的扶手使用。


老人衛繼續延續橙色主調,干凈洗練,色塊的搭配簡約而富于秩序的美感。衛浴空間的折疊座椅與扶手設計,照顧到了父親有靜脈曲張手術史的不便,將適老化設計貫穿到空間的每一個細節。

兒童房

弟弟房考慮到其還在讀高中,專門設置了閱讀區、榮譽展示區以及書架陳列區。墨綠色與橙色的搭配是空間主色調的延續,為其提供了安靜舒適的學習與休息環境。

墨綠色與橙色的搭配是空間主色調的延續,為其提供了安靜舒適的學習與休息環境。
陽臺

改造后的天臺一改之前雜亂不堪、破敗失修的蕭條之狀,煥作嶄新自然的休閑茶話區,融入竹元素、蔬菜綠植,富于悠閑逸趣的格調。閑時,種種花,澆澆菜,一家人圍坐一起,話話家常、聊聊近況,都是平凡歲月中的愉悅時光。

從業經驗:12年
職稱:資深設計師
擅長風格: 輕奢美式現代
簡介:畢業院校;昆明理工大學,格調裝飾“資深設計師”,中國建筑學會室內設計分會會員;亞太空間設計師協會云南分會會員;云南省裝飾協會YNID會員 ;
找他設計